Projectes

Bernuz-Fernandez Arquitectes


NOVA SEU D’ENDESA A BARCELONA

  • My Image
  • My Image
  • My Image
  • My Image
  • My Image
  • My Image
  • My Image
  • My Image

Arquitecte responsable: Alotark Arquitectos & Consultores S.L.P.
Any projecte: 2010
Final obra: 2012
Tipus obra: Reforma/Rehabilitació
Ús: Oficines
Tipologia estructura: Formigó armat - Metàl·lica
Protecció patrimonial: Nivell D (Be d'interès Documental) i B (Bé Cultural d'Interès Local) de Patrimoni Arquitectònic de l’Ajuntament de Barcelona.
PEC: >36M
m2: >10000
Premi: -
Promotor: Privat

Descripció:
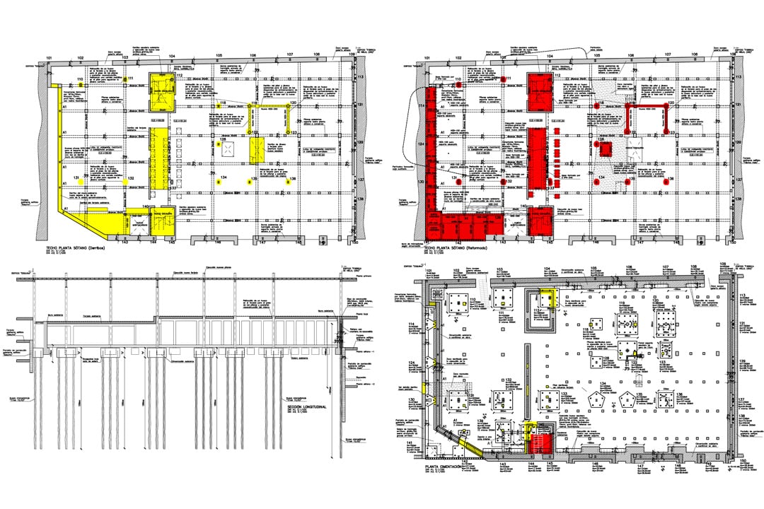
Les obres que es van dur a terme corresponien a la reforma i ampliació de les instal·lacions d’Endesa situades a l’illa definida pels carrers Vilanova, Nàpols, Almogàvers i Roger de Flor, a Barcelona.
Les actuacions van ser moltes i variades, i totes elles van tenir en comú que es van haver de dur a terme en edificis d’oficines o d’instal·lacions elèctriques existents, amb tota la dificultat que això suposa.
Així doncs, es van adaptar zones als nous condicionants arquitectònics, enderrocant parts de l’estructura existent per, posteriorment, adaptar-ne de noves.
Un dels edificis que va suposar una major dificultat a nivell d’execució va ser el conegut com “de les cel·les”, donat que al seu soterrani accedeixen les línies d’alta tensió de la zona. Amb aquest important condicionant es va haver de treballar, tot enderrocant l’antic edifici però conservant el sostre del soterrani. Aquest fet va obligar a dur a terme una fonamentació profunda mitjançant micropilotatge per, posteriorment, aixecar una nova estructura metàl·lica amb unions cargolades.